Boudewijn Lippensstraat 4, 9990 Maldegem
BIV 504.554 - 508.983
info@flandersproperties.be
+32 50 60 01 60
www.flandersproperties.be
te koop — Bouwgrond / Waterpolder , 9990 Maldegem
€ 375.000
- € 375.000
Beschrijving
Te koop Lot 1C: Exclusieve bouwgronden zonder bouwverplichting in idyllisch Middelburg (Maldegem)
Droomt u van bouwen op een toplocatie zonder druk of verplichtingen? Ontdek dan deze unieke kans in het charmante en landelijke Middelburg, een deelgemeente van Maldegem, op slechts:
Nog slechts 4 percelen beschikbaar!
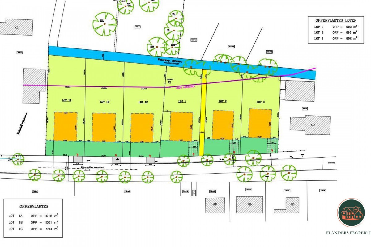
LOT 1C – 994 m²
Prijs: € 415.000
Interesse? Contacteer ons vandaag nog voor een vrijblijvende bezichtiging of meer info.
Flanders Properties – Waar wonen begint met kwaliteit.
Droomt u van bouwen op een toplocatie zonder druk of verplichtingen? Ontdek dan deze unieke kans in het charmante en landelijke Middelburg, een deelgemeente van Maldegem, op slechts:
-
10 minuten van zowel Knokke als Maldegem centrum
-
15 minuten van het bruisende Brugge
Nog slechts 4 percelen beschikbaar!
LOT 1C – 994 m²
Prijs: € 415.000
-
Geschikt voor vrijstaande bebouwing
-
Zonder bouwverplichting: bouw op uw eigen tempo, wanneer en met wie u wil
-
Zuidwest-georiënteerd perceel: ideaal voor een zonnige tuin
-
Exclusieve ligging in een landelijke, doch centrale regio
-
Beperkt aanbod in een hoogwaardige verkaveling
-
Vrijheid en flexibiliteit dankzij de afwezigheid van bouwverplichting
-
Perfect voor eigen bewoning, tweede verblijf of als investering
Interesse? Contacteer ons vandaag nog voor een vrijblijvende bezichtiging of meer info.
Flanders Properties – Waar wonen begint met kwaliteit.
Financieël
- Prijs
- € 375.000
- Onder BTW stelsel
- Nee
- Referentie
- WTR005
Afmetingen
- Grondoppervlakte
- 816 m²
- Terreindiepte
- 43 m
Algemeen
- Staat
- Nieuw
Ruimtelijke ordening
- Bestemming
- Woongebied met landelijk karakter
- Bouwvergunning
- Nee
- Dagvaarding
- Nee
- Verkavelingvergunning
- Ja
- Voorkooprecht
- Nee
- O-peil
-
Niet gelegen in een overstromingsgevoelig gebied
- P-score
- A
Waterpolder 9990 Maldegem
- Buurt
- Landelijk
- Ter beschikking stelling
- Vanaf akte